株式会社オーズ リフォーム部
06-6356-3837
資料請求・お問い合わせ
ホーム
ニュース
クラフトの考え方
リフォームのながれ
会社情報
TEL :
06-6356-3837
資料請求・お問い合せ
コルクの床、珪藻土の壁。
自然素材のやさしさに包まれて、人も犬も快適に
西宮市・A邸 | マンション | 築13年 | 費用 306万円
自然のやさしさを足で感じるコルクタイルの床は、床暖房なしでも暖かい。
TVボードや飾り棚、カウンターやテーブルまで、すべてタモ材で。隙間に犬の毛が入りにくいよう、扉などの滑車部分はオリジナル仕様に。
明るいダイニングキッチン。LDKの天井・壁には珪藻土を塗り、空気もさわやか。
キッチンの床は天然石調のタイル。掃除がしやすく、ペットの犬も夏を涼しく過ごせる。
Barカウンター内部・腰壁は珪藻土仕上げ。食器収納棚、ウォーターサーバーやダストボックスの置き場所も詳細に設計。
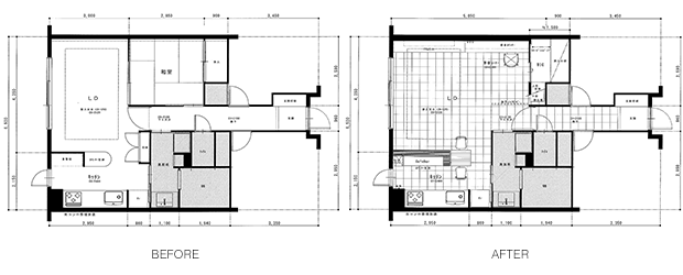
キッチン側に張り出していた収納を取り、水回りをスムーズに回遊。リビングもより広く。
和室の押入れを使いやすく広いW.I.C.にリニューアル。いつも家族が見える場所にお仏壇をビルトイン。
リビングの一角に設けた書斎スペース。コード類はパネルや収納の中に隠して。
バリアフリーが美しい。廊下もコルクタイル仕上げ。
LDK入口の梁にタモ材のバーをインテリアとして設置。さりげない室内干しスペースに。
リフォーム費用
3,062,000万円
仮設・解体工事
169,000円
木・造作工事
1,162,000円
左官・タイル工事
708,000円
木製建具工事
101,000円
内装工事・雑工事
446,000円
給水設備工事
30,000円
電気設備工事
446,000円